「磁力泵」MP/MPH微型磁力泵
- 選型報價: 獲取2021年價格
- 流量范圍:4.5-300(L/min)
- 揚程范圍:0.8-20.5(m)
- 軸封形式:磁力
- 泵的類型:離心式
- 功率范圍:3-2200(w)
- 口徑范圍:14-26/14-26(mm)
- 材質可選:增強聚丙烯
- 連接方式:磁力
- 驅動形式:三相交流電機
一、MP微型磁力循環泵產品簡介:
上海品牌廠家沈泉泵閥生產制造的磁力驅動循環泵,產品型號有小型至大型等多種型號,適合各種工業系統和程序上使用。其可靠性能及優越性能享有G高的信譽。

二、MP系列微型磁力驅動循環泵產品用途:
| 化學工業 | 碳酸鈉化工業(鹽酸、次氟酸、二次化學品的生產);氟化物、化學肥料的生產;氣體吸收塔反應液體循環;油脂提煉(硫酸);廢酸類的回收及再生系統;化工廠和運輸車輛間的強酸類輸送。 |
| 劑業 | 半導體用的發光化學物(EL)、農藥、醫藥、水處理化學劑的生產 |
| 電鍍業 | 循環過濾各類電鍍液。 |
| 照片業 | 即現照相系統;X-光片、黑白、彩色、立體照片的沖曬。 |
| 電器用具業 |
電解質電容器的生產(鋁膜的浸蝕);干電池和蓄電池制造過程中輸送電解液; 電路板的蝕刻;半導體生產過程中輸送高純度化學液。 |
| 金屬工業 |
氧化鋁膜處理設備;線材拉伸、鋼鐵軋制中除油及酸洗; 車輛噴漆前除油及酸洗處理;氧化鈦、稀土元素的生產等。 |
| 礦業 | 金屬熔煉(輸送及循環電解液);廢液的洗滌處理。 |
| 食品工業 | 葡萄糖酸的生產(鹽酸);食油的提煉(硫酸);罐裝水果工業(鹽酸)。 |
| 醫療 | 人造腎臟、心肺、超聲波清洗機及各種醫療設備。 |
| 水處理 | 清洗離子交換樹脂;純水生產設備;海水淡化設備。 |
| 污染控制 |
添加污水處理化學藥劑到藥液缸;收集及輸送廢液; 廢氣吸收設備(除臭裝置,排放廢氣前脫硫)。 |
| 其它 | 應用在銀回收、晶片制造、實驗工廠、制冷機、飲品機、生活鍋爐、熱交換器、太陽能系統、漂染、激光系統等領域及噴水池、魚池、觀賞魚缸循環使用。 |
各行業不同工況MP/MPH微型磁力泵適用型號的選型及不同材質和配置下的價格問題歡迎致電24小時報價熱線400-6656-887咨詢2019年微型磁力泵廠家直銷價格,同時可提供外形尺寸、安裝圖紙,結構圖紙、曲線圖譜和安裝尺寸等數據。
三、MP系列磁力驅動循環泵性能參數


用戶可根據此表選型確定型號,如有特殊情況可咨詢我公司技術人員。
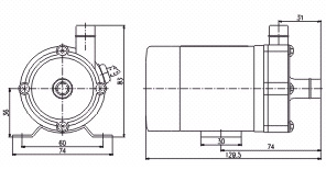
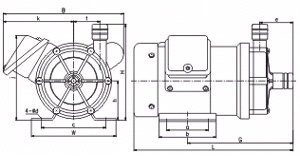
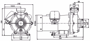
四、MP系列微型磁力驅動循環泵(安裝尺寸)

| 型 號 | a | b | c | d | e | f | G | h | H | W | L |
| MP-15R | 49 | 63 | 68 | 6 | 38 | 23 | 121 | 45 | 100 | 82 | 196.5 |
| MP-15RN | 49 | 63 | 68 | 6 | 39.5 | 24.5 | 117.5 | 46 | 100 | 82 | 180 |
| MP-20R | 30 | 50 | 68 | 5.5 | 38.5 | 28.5 | 131.5 | 56 | 116 | 85 | 209 |
| MP-20RZ | 30 | 50 | 68 | 5.5 | 40 | 40 | 134 | 56 | 126 | 85 | 212 |
| MP-20RM | 30 | 50 | 68 | 5.5 | 34 | 28.5 | 127 | 56 | 117 | 85 | 204.5 |
| MP-30R | 40 | 64 | 100 | 9 | 48 | 30 | 166.5 | 60 | 130 | 120 | 249.5 |
| MP-30RZ | 40 | 64 | 100 | 9 | 40 | 40 | 151 | 60 | 130 | 120 | 234 |
| MP-30RM | 40 | 64 | 100 | 9 | 48 | 30 | 166.5 | 60 | 130 | 120 | 249.5 |

| 型 號 | a | b | c | d | e | f | G | h | H | W | L |
| MP-20RX | 30 | 50 | 68 | 5.5 | 46.5 | - | 143 | 56 | 130 | 85 | 220.5 |
| MP-30RX | 40 | 64 | 100 | 9 | 48 | - | 169.5 | 60 | 138 | 120 | 252.5 |
| MP-40RX | 40 | 64 | 100 | 9 | 48 | - | 170.5 | 60 | 138 | 120 | 277 |

| 型 號 | a | b | c | d | e | f | G | h | H | W | L | B | J | K |
| MP-40R | 40 | 64 | 100 | 9 | 48 | 30 | 167.5 | 60 | 130 | 120 | 274 | - | 118 | 60 |
| MP-40RM | 40 | 64 | 100 | 9 | 48 | 30 | 167.5 | 60 | 130 | 120 | 274 | - | 118 | 60 |
| MP-55R | 40 | 64 | 100 | 9 | 56.5 | 43 | 198.5 | 65.5 | 161 | 120 | 275 | - | 140 | 54 |
| MP-55RZ | 40 | 64 | 100 | 9 | 56.5 | 43 | 198.5 | 65.5 | 161 | 120 | 275 | - | 140 | 54 |
| MP-70R | 70 | 96 | 108 | 9.5 | 55.75 | 44 | 177 | 66 | 161 | 142 | 267 | 202 | 142 | 118 |
| MP-70RM | 70 | 96 | 108 | 9.5 | 52.75 | 44 | 174 | 66 | 156 | 142 | 264 | 202 | 142 | 118 |
| MP-100R | 70 | 100 | 110 | 9 | 66 | 44 | 195.5 | 74 | 174 | 156 | 322 | 202 | 150 | 118 |
| MP-100RM | 70 | 100 | 110 | 9 | 66 | 44 | 195.5 | 74 | 174 | 156 | 322 | 202 | 150 | 118 |
| MP-100RX | 70 | 100 | 110 | 9 | 63 | 40 | 196.5 | 74 | 174 | 156 | 323 | 205 | 167 | 124 |
| MP-120R | 98 | 130 | 110 | 12 | 80 | 51 | 184.5 | 93 | 208 | 140 | 359 | 216 | 187 | 123 |

| 型 號 | a | b | c | e | f | G | h | H | W | L | J | K |
| MPH-400 | 98 | 130 | 110 | 80 | 51 | 188 | 94 | 209 | 140 | 384 | 183 | 128 |
| MPH-401 | 130 | 175 | 130 | 98 | 57.5 | 244 | 114 | 247 | 160 | 475 | 208 | 137 |
五、MP系列磁力驅動循環泵(曲線圖譜)

備注:以上參數選型表只是MP/MPH微型磁力泵的部分性能參數,如在上表中沒有找到符合貴單位要求的型號參數可以向我們咨詢,我們有專業的工程師為您提供常規產品中沒有的參數選型,更加精準的選出適合貴單位適用的磁力泵型號產品。
在選型過程中請盡量提供以下幾項數據:1、口徑,2、流量,3、揚程或者水頭(m),4、過流材質,5、流體介質,6、介質粘稠度,7、介質是否含有顆粒,8、電機功率(KW),9、轉速(r/min),10、電壓〔V〕,11、使用環境:室內或室外,高原或平原,所處位置是否要求防爆等等,如果你對以上關于微型磁力泵的選型,不同流體介質適用泵體,葉輪和機械密封等過流部件的材質及不同配置的2019年價格有任何問題,請您致電我公司,我們將竭誠為您提供優質的服務。
相關產品推薦:CQG耐高溫磁力驅動泵 CQ磁力離心泵 CQB系列磁力泵
本文標題:「磁力泵」MP/MPH微型磁力泵本文地址:http://m.meigi-henkou.com/CQZCQCQB/266.html
管道離心泵
排污泵
自吸泵
磁力泵
隔膜泵
螺桿泵
全國統一服務熱線:400-6656-887
地址:上海市嘉定區綠色經濟工業園
郵箱:sales@sqmade.com





